Sprengel Stade, KK Wesermünde | Patrozinium: Johannes1 | KO: Keine Kirchenordnung
Orts- und Kirchengeschichte
Urkundlich ist der Ort erstmals 1105 als Santstedi belegt.2 Zusammen mit den übrigen Kirchspielen Osterstades – Bruch, Neuenkirchen, Uthlede und vielleicht Dedesdorf – schloss sich Sandstedt spätestens 1212 als Oststedingen dem Stedinger Bund an, den der Bremer Ebf. Gerhard II. (amt. 1219–1258) 1233/34 in zwei Kreuzzügen besiegte.3 In der ersten Hälfte des 14. Jh. lässt sich für das Gebiet um Sandstedt – Osterstade ultra Gravam bzw. benedden der Grave – innerhalb des Erzstifts Bremen „durchaus eine gewisse Autonomie erkennen“ (Landesgemeinde).4 Später unterstand Osterstade dem erzbischöflichen Amt Hagen. Nach Ende des Dreißigjährigen Krieges (1618–1648) blieb das Gebiet der säkularisierten Hochstifte Bremen und Verden unter schwedischer Herrschaft (vereinigte Herzogtümer Bremen-Verden). Im Großen Nordischen Krieg (1700–1721) besetzte Dänemark 1712 die Hzm. Bremen und Verden und 1715 konnte das welfische Kfsm. Braunschweig-Lüneburg (Kurhannover) die beiden Territorien erwerben (1719 von Schweden gegen weitere Zahlung anerkannt). In französischer Zeit zählte Sandstedt im Jahr 1810 kurzzeitig zum Kgr. Westphalen und dann zum Kaiserreich Frankreich (Département des Bouches du Weser, Arrondissement Bremerlehe, Kanton Hagen, 1811–1814). Ab 1815 war Sandstedt, nun im Kgr. Hannover, erneut Teil des Amtes Hagen. Mit der Annexion des Kgr. Hannover fiel der Ort 1866 an das Kgr. Preußen. Bei Einführung der Kreisverfassung 1885 kam Sandstedt zum Kr. Geestemünde, der 1932 im Lkr. Wesermünde aufging; dieser wiederum ging 1977 im neuen Lkr. Cuxhaven auf. 1968 wurden Offenwarden, Rechtenfleth und Wersabe nach Sandstedt eingemeindet, 1974 auch Wurthfleth. Ab 1970 gehörte Sandstedt zur Samtgemeinde Hagen, seit 2014 zur Einheitsgemeinde Hagen im Bremischen. Die Zusammensetzung der Kirchengemeinde Sandstedt beschrieb der Ortspfarrer 1962 folgendermaßen: „a) die Bauernschaft – mittlerweile zur Minderheit geworden. b) die in hiesigen Betrieben oder in der Stadt tätige Arbeiterschaft und die Angestellten […]. c) die kleine, aber einflussreiche Gruppe der Selbständigen, Unternehmer, Handwerker und Kaufleute“.5 Um 18190 lebten rund 460 Menschen in Sandstedt, 1910 knapp 590, 1950 gut 860 und 2017 etwa 810.
Die Urkunde aus dem Jahr 1105, in der Sandstedt erstmals belegt ist, ist gleichzeitig das älteste Zeugnis der örtlichen Kirchengeschichte. In der Urkunde heißt es, Ebf. Adalbert I. von Bremen (amt. 1043–1072) habe in Sandstedt ein oratorium (Bethaus) errichten lassen. Der Pfarrer der Parochie Bramstedt, zu der Sandstedt gehörte, habe dem Bau zugestimmt.6 1105 war Sandstedt noch Teil des Kirchspiels Bramstedt. Wann das Sandstedter Bethaus zur Pfarrkirche erhoben wurde und die Gemeinde einen eigenen Geistlichen erhielt, ist nicht bekannt. Der erste nachweisbare Pfarrer ist der 1269 genannte Martinus plebanus de Sanstede.7 1277 ist ein Marquardus plebanus in Sandstede urkundlich erwähnt.8 Um 1419/20 verlegte die Gemeinde Sandstedt den Deich, gab den bisherigen Kirchhof und die alte Kirche auf und errichtete weiter westlich eine neue Kirche, die sich im Kern bis heute erhalten hat.9 Die Wandmalereien an Nord- und Ostwand stammen aus der Zeit des Neubaus. Laut der Inschrift einer 1596 gegossenen Glocke war die Sandstedter Kirche St. Johannes geweiht. Gleichzeitig mit dem Neubau der Kirche lösten sich die Dörfer Rechtlebe, Wersabe und Wurthfleth aus der Parochie Sandstedt und bildeten das Kirchspiel Wersabe. Im Jahr 1427 bat der Kleriker Hinricus Nyeland (Nieman) um das Pfarramt Sanstede; die Pfarrkirche sei vakant, seitdem Nicolaus Vilghemeyt das Pfarramt aufgegeben habe, allerdings halte sie der Priester Gerhardus Stock seit vier Jahren besetzt.10 Ebenfalls 1427 erhob der Kleriker Hinricus Bekeshouede Ansprüche auf die Pfarrpfründe Sandstedt.11 Neben der Pfarrstelle bestand ein Vikariat bzw. Kommende am Altar Unser Lieben Frau in der Sandstedter Kirche. Als Vikar ist der bereits genannte Gerhard Stock nachgewiesen, der die Stelle 1440 aufgab und Gottschalk Buk überließ.12 Um 1461 war Otto Hustedt Pfarrer in Sandstedt und mit Voget Oderick und Dirich Hüncke sind auch die Namen zweier Juraten (Hillige Lüde) überliefert.13 1547 ist Wilhelmus Suden als Pfarrer (Rector) belegt; er war vermutlich noch altgläubig.14 In vorref. Zeit besaß vermutlich auch Rechtenfleth eine Kapelle.15
Im Zeitalter der Reformation regierte mit Ebf. Christoph von Braunschweig-Lüneburg (amt. 1502–1558) zunächst ein entschiedener Gegner der luth. Lehre im Stift Bremen (und gleichzeitig im Stift Verden). Trotzdem fasste der Protestantismus während seiner Regierungszeit Fuß in den Gemeinden des Erzstifts.16 Ebf. Christophs Bruder und Nachfolger in beiden Bistümern, Ebf. Georg (amt. 1558–1566), duldete den neuen Glauben. Der Bremer Ebf. Heinrich III. von Sachsen-Lauenburg (amt. 1567–1585) schließlich war Protestant, verfolgte jedoch eine vorsichtige Kirchenpolitik; zur Einführung einer ev. Kirchenordnung kam es während seiner Amtszeit nicht. Im Erzstift Bremen hat sich, zugespitzt formuliert, „eine allmähliche Reformation“ vollzogen, „die meistens auf Gemeindeebene begann“.17 Einzelheiten zur Entwicklung in Sandstedt sind nicht überliefert.18 Der erste belegte luth. Prediger ist der auf der 1596 gegossenen Glocke genannte P. Ernst Adamus.19 Als Vikar ist Appoldus Lindenbroch (amt. 1574, 1600) nachgewiesen (Erpold Lindenbrog).20 Die Überlieferung hinsichtlich der Pfarrstelle und der Kommende oder Vikarie in Sandstedt sind für das 16. und die ersten Jahrzehnte des 17. Jh. lückenhaft und es ist nicht immer klar zu erkennen, wer die Stellen wann innehatte.21
1601 übernahm P. Thomas Oesterreich (amt. 1601–1614) das Pfarramt. In seine Amtszeit fiel um 1607 bis 1611 eine großangelegte Renovierung und Umgestaltung des Kirchengebäudes sowie des Glockenturms. In der Amtszeit von P. Christian Hoddersen (amt. 1615–1625) begann die Gemeinde, spenden für eine Orgel zu sammeln (Spendenbuch erhalten).22 Verwirklicht wurde der Orgelbau vermutlich um 1622; als Organisten sind 1635 Warnerus und Christian Oporin belegt.23 Mit Hermann Gally (Hane) ist 1622 der Name eines Lehrers an der Schule in Sandstedt überliefert.24 Seit Einrichtung des Konsistoriums Stade und der Präposituren in den Hzm. Bremen und Verden 1651/52 war der Sandstedter P. Theodor Stolting (amt. 1638–1654) gleichzeitig Propst für Osterstade und Vieland. Nach dem Tod des Vikars Nikolaus Undeutsch (amt. 1654–1687) blieb das Vikariat unbesetzt und P. Johann Allert Siltmann (amt. 1681–1712) übernahm neben seinem Pfarramt auch das Vikariat, einschließlich der dazugehörenden Einkünfte.25 Vergeblich bemühte sich die Gemeinde Sandstedt 1713 darum, wieder beide Stellen zu besetzen.
P. Carl Georg Hieronymus Biedenweg (amt. 1796–1826) war neben seinem Pfarramt auch publizistisch tätig und veröffentlichte Aufsätze zu theologischen und anderen Themen (1795: Kriegslieder „Des Helden Vaterlandsliebe“ und „Fürs teutsche Vaterland“; 1795: Die liebe vieler guten Menschen, als eine besondere Freudenquelle des Predigtamtes betrachtet; 1817: Ueber Moorkultur; 1818: Für die Vereinigung der beyden protestantischen Kirchen).26 Seit der Neuordnung der Inspektionen in den Hzm. Bremen und Verden 1827 war die Pfarrstelle Sandstedt mit der Superintendentur der Insp. Hagen verbunden (seit 1875: Insp. Sandstedt). Um 1826 begann die Gemeinde Sandstedt, die Instandsetzung und Umgestaltung ihrer Kirche zu planen, und verwirklichte das Vorhaben schließlich ab 1852, während der Amtszeit von P. und Sup. Georg Franz Daniel Fromme (amt. 1845–1864). Der Schriftsteller Hermann Allmers (1821–1902), Gemeindeglied des Kirchspiels Sandstedt, gehörte der sogenannten Vorsynode an, die 1863 in Hannover zusammentrat und über eine neue Kirchenverfassung beriet; von 1865 bis 1868 war Allmers Kirchenvorsteher in Sandstedt.27 In der zweiten Hälfte des 19. Jh. kritisierte er in mehreren Briefen an den Sandstedter KV die Umgestaltung und Modernisierung des Kirchengebäudes; der KV überließ Allmers 1893 die alten, hölzernen Emporenstützen, die durch gusseiserne ersetzt worden waren.28
P. und Sup. Karl Ohnesorg (amt. 1887–1922) schrieb in seinen Erinnerungen, er habe kurz nach seinem Amtsantritt einen kirchlichen, gemischten Gesangsverein in Sandstedt gegründet. Das Ziel, mit dem Verein „den vorhandenen Klassenunterschied auszugleichen“, erreichte er jedoch nicht: „Manche aus dem Bauernstand blieben weg, weil sie nicht mit Knechten und Mägden zusammen singen wollten.“29 Im Jahr 1899 richtete Sup. Ohnesorg eine Schwesternstation für die Insp. Sandstedt ein.
Während der NS-Zeit hatten nacheinander P. und Sup. Johann Gustav Küver (amt. 1923–1935) und P. Hans Reinhard Bunnemann (amt. 1936–1947) das Pfarramt Sandstedt inne. Seit der Fusion der KK Sandstedt und Wesermünde-Geestemünde im Jahr 1936 war Sandstedt nicht mehr Sitz der Superintendentur. Im „Fragebogen zur Geschichte der Landeskirche von 1933 bis Kriegsende“ gab P. Bunnemann an, Sup. Küver sei „politisch und kirchenpolitisch ungebunden“ gewesen, er selbst habe seit 1934 kirchenpolitisch zur Hannoverschen Bekenntnisgemeinschaft gehört.30 Bei der Neuwahl des Kirchenvorstandes 1933 habe die NSDAP diktatorisch in die Kandidatenaufstellung eingegriffen; von den sechs gewählten Kirchenvorsteher sei einer „rein politisch“ gewesen, ein zweiter sei 1937 „wegen Parteieinflusses“ ausgeschieden, die übrigen hätten sich „kirchlich bewährt“. Ein Kirchenvorsteher, Mitglied der NSDAP seit 1932, sei „wegen der antichristlichen Hetze“ aus der SA ausgetreten.31 Der Kirchenkampf sei in der Gemeinde Sandstedt „kaum bemerkt noch weniger verstanden“ worden.32
Aufgrund des Zuzugs Geflüchteter stieg die Zahl der Gemeindeglieder in Sandstedt von rund 1.270 im Jahr 1939 auf etwa 1.730 im Jahr 1950 an. Gleichzeitig entstand eine kleine kath. Gemeinde, die sich einmal im Monat in der ev. Kirche zur kath. Messe versammelte (1950).33 Im Jahr 1945 hatte die KG Sandstedt eine Gemeindeschwesternstation eingerichtet (seit Ende der 1970er Jahre Teil der Sozialstation Beverstedt-Hagen), 1956 gründete sich ein Posaunenchor.34 Nach den Visitationen 1937 und 1950 hatte der Superintendent die Gemeinde Sandstedt jeweils als „eine Marschgemeinde mit einem ausgesprochenen Bauerntum“ beschrieben; auch wenn sich die „starke Traditionsgebundenheit“ lockere, so sei „die kirchliche Sitte noch ungebrochen“.35 Eine „Welle der Erweckung“ hingegen, so heißt es 1962, habe die Gemeinde nie erreicht.36 In der ersten Hälfte der 1960er Jahre richtete die Kirchengemeinde ev. Kinderspielkreise in Sandstedt und Rechtenfleth ein (die Spielkreisarbeit endete 1993). Seit 1959 war das Pfarramt Sandstedt auch für die vakante Nachbargemeinde Wersabe zuständig.37

Kirche, Blick zur Empore, Teilansicht, an der Nordwand Stiftungstafel, Foto: Ernst Witt, Hannover, April 1963
Im Rahmen der Partnerschaft zwischen der hannoverschen und der sächsischen Landeskirche unterhielten die KG Sandstedt, Wersabe, Uthlede und Wulsbüttel Kontakte zur Kirchgemeinde Ursprung (südwestlich von Chemnitz).38 Nach der Visitation 1987 beglückwünschte der Sup. des KK Wesermünde die KG Sandstedt „wegen ihres reichen kirchenmusikalischen Lebens: Kirchenchor, Posaunenchor, Konzerte – und das alles in einer doch vergleichsweise recht kleinen Gemeinde“. Die Zahl der Gemeindeglieder lag seinerzeit bei knapp 1.010.39 Seit 1999 fanden Sonntagsgottesdienste im wöchentlichen Wechsel in Sandstedt und Wersabe statt. Zum 1. Februar 2003 richtete das LKA Hannover eine pfarramtliche Verbindung zwischen den beiden Gemeinden ein; die KG Uthlede wurde mitversehen.40 Seit 2015 ist auch die neugegründete KG Uthlede-Wulsbüttel Teil des verbundenen Pfarramts. 2018 zählte die St.-Johannis-KG Sandstedt zu den Gründerinnen des „Ev.-luth. KGV Wesermünde Südregion“, dem überdies die KG Bramstedt, Hagen im Bremischen, Uthlede-Wulsbüttel und Wersabe angehören.41 Die fünf Gemeinden vereinbarten eine „enge inhaltliche, personelle und finanzielle Zusammenarbeit“.42
Umfang
Sandstedt sowie Offenwarden, Offenwardermoor und Rechtenfleth. Bis 1992 auch ein Teil von Harriersand (dann umgegliedert in die Ev.-luth. Kirche in Oldenburg).43 Bis 1981 auch Rechtenflethermoor (dann zur KG Hagen im Bremischen).44 1895 eine Anbaustelle in Kassebruch von Bramstedt nach Sandstedt umgepfarrt.45 Bis 1420 auch Rechtlebe, Wersabe und Wurthfleth (dann Parochie Wersabe).46
Aufsichtsbezirk
Oboedientia Bramstedt in der Diözese Bremen.47 – Seit der Gründung des Kons. Stade 1651/52 gehörte Sandstedt zur Osterstadischen Präpositur bzw. Präpositur Osterstade-Vieland. Seit der Neuordnung der Aufsichtsbezirke in den Hzm. Bremen und Verden 1827 war Sandstedt Sitz der Insp. Hagen, 1875 umbenannt in Insp. Sandstedt. 1924 KK Sandstedt. 1936 aufgegangen im KK Wesermünde-Geestemünde.48 Nach Aufhebung des KK Wesermünde-Geestemünde kam Sandstedt 1940 zum neuen KK Wesermünde-Süd.49 Seit dessen Fusion mit dem KK Wesermünde-Nord gehört Sandstedt seit 1. Januar 2013 zum KK Wesermünde.50
Patronat
Wohl Domkapitel und Erzbischof zu Bremen51, seit Aufhebung des Domkapitels 1648 der Landesherr (bis 1871). Das Patronat über die Kommende am Altar Beatae Maria Virginis (Unser Lieben Frauen) in der Sandstedter Kirche besaßen 1574 Pastor und Juraten (Präsentationsrecht) sowie der Oboedientiar zu Bramstedt (Konfirmationsrecht).52
Kirchenbau
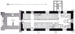
Saalbau mit rechteckigem Chor und Anbau an der Nordseite, im Kern 1420, Außenmauerwerk erneuert 1609–13. Satteldach. Backsteinmauerwerk, einige Quadersteine, Stützpfeiler. Korbbogige Sprossenfenster an den Längsseiten, breites Spitzbogenfenster nach Osten. Spitzbogige Portale nach Norden und Süden. Im Innern flache Decke mit seitlichen Vouten, u-förmige Westempore mit kurzen Seitenflügeln. An Nord- und Ostwand mittelalterliche Ausmalungsreste (erste Hälfte 15. Jh., 1912 teilweise freigelegt, 1938/39 freigelegt, 1961 restauriert, 1981 restauriert, ab 1997 gesichert), an der Ostwand die Heilige Sippe und Maria als Himmelskönigin, an der Nordwand Petrus mit Schlüssel und Buch sowie Steinigung des Stephanus.53 In der nördlichen Ostwand Tabernakel, Piscina und liturgisches Ostergrab (2000 freigelegt).54 1580/81 Reparaturarbeiten, Dach neu gedeckt, Vorbauten vor den beiden nördlichen Eingängen errichtet.55 1607–11 grundlegende Instandsetzung, Außenmauerwerk neu aufgemauert, Innenraum umgestaltet. 1673 Westempore für die Orgel erbaut (Zimmermann Johann Moller). 1682 Nordempore erbaut (Zimmermann Johann Moller). Um 1800 Decke erneuert, Stützpfeiler am Schiff errichtet. 1852 bemalte, mittelalterliche Decke mit verputzter Voutendecke ersetzt, Fenster vergrößert, Außenmauern erhöht. 1893/94 hölzerne Emporenstützen durch gusseiserne ersetzt. 1938/39 Renovierung, u. a. Nordempore und Ostempore abgebrochen (wegen Wandmalereien); Wandmalereien freigelegt, restauriert und ergänzt (Heinrich Bücker, Hannover); Westempore verändert neu errichtet; Außenputz entfernt. 1962/63 Innenrenovierung, u. a. Westempore umgestaltet, Altarretabel umgestaltet („Die Einrichtung stellt sich heute als historisierendes Konstrukt des 20. Jahrhunderts dar“56). 1999–2001 Innen- und Außenrenovierung, u. a. Sicherung der Wandmalereien.
Turm
Westturm mit etwa quadratischem Grundriss, weitgehend neu errichtet 1611.57 Kupfergedeckter Turmhelm mit vierseitigem Ansatz und sehr hoher, achteckiger und leicht gewundener Spitze, bekrönt mit Kugel und Wetterfahne. Backstein- und Feldsteinmauerwerk, im oberen Bereich Eckquaderung; hohe, geböschte Stützpfeiler an den Westecken; Trauffries. Im Glockengeschoss je zwei rundbogige Schallfenster nach Norden, Süden und Westen, oben dazwischen Uhrziffernblätter. Eingang an der Nordseite, darüber rundbogiges Sprossenfenster, ein weiteres nach Süden. An der Westseite sechs Wappen (Sandstein, P. Thomas Oesterreich, Johan Hoen, Wirick Betcken Vogt zu Rechtenfleth, Eilert Almers zu Sant., Hinirch Siren, Harm Stover). Höhenmarke der preußischen Landesaufnahme. 1615 neue Turmuhr (Meister Johann Stolling, Bremen). 1846 Reparatur nach Blitzeinschlag. 1875 neue Turmuhr. 1902 Turmspitze nach Blitzeinschlag niedriger erneuert, Schieferdeckung. 1979/80 Sanierung, u. a. ursprüngliche Höhe wiederhergestellt, Kupferdeckung.
Vorgängerbau
Mittelalterliche Kirche, gegründet etwa Mitte des 11. Jh. als Bethaus (Oratorium). 1105 belegt. Nach Verlegung des Deichs 1420 Kirchengebäude aufgegeben und auf einer Wurt weiter östlich Neubau errichtet.
Ausstattung
- Vor 1939
- Um 1950
- Nach 1963
Kastenförmiger Altar mit architektonisch gestaltetem Retabel, farbig gefasst (Ende 17. Jh., wohl Jakob Helmerß, Stade), im Mittelfeld Gemälde mit Kreuzigungsszene, flankiert von je zwei gewundenen Säulen, die verkröpftes Gebälk tragen, zwischen den Säulen Figuren der Evangelisten Matthäus und Markus mit ihren Symbolen (stehend); auf dem Gebälk Figuren der Evangelisten Lukas und Johannes mit ihren Symbolen (liegend), dazwischen Bildfeld mit Auferstehungsgemälde, flankiert von zwei gedrehten Säulen, die verkröpftes Gebälk tragen; Schnitzwerk als Bekrönung; in der Predella Abendmahlsgemälde; seitliches Schnitzwerk; Altar 1852 umgestaltet; 1962 erneut umgestaltet.58 – Hohe Kanzel (1600, Brun Jacupes, Oldenburg) mit kronenartigem Schalldeckel (um 1760), polygonaler Kanzelkorb auf einer Mittelstütze; vor den Ecken Karyatidhermen und Hermen, an den Wandungen Rundbögen mit Reliefs, die Szenen aus dem Leben Jesu zeigen, darunter niederdeutsche Inschriften (geschnitzt) und hochdeutsche Bibelverse (gemalt): Christi Geburt „Godt hadde Marien vth erkare. Darvan wor Christvs to unser Selicheit gebaren“ und „Psalm 119 Dein Wort ist meiner Füsse Leüchte vnd ein Licht auf meinem Wege“, Kreuzigung „Christvs is vmme vnser svnde gestoven darmit he vns den Hemmel vorworven“ und „Ioh. 8 Wer aus Gott ist, der höret Gottes Wort“, Auferstehung „Christvs is vperstanden wedder de Hoder alle. Vnd ys erschenen sinen Jvngren alle. Roma am 4.“ und Luc II Selig sind, die Gottes Wort Hören vnd bewaren“, Himmelfahrt „Christvs is upgevaren tho Hemmel. Den Hilgengest sende he vns her neder Mar I am“ und „Marc 8 Wer sich mein vnd meiner Worte schemet dessen wird sich des Menschensohn auch schemen“; an der Brüstung Inschrift: „Matth. 10 Cap. Ihr seid es nicht, die da reden sondern ewres Vaters Geist ist es der durch euch redet“; Inschrift im Innern des Kanzelkorbs: „Anno 1600 heft Brun Iacvpes disen Stolt ho oldenborch gemäket“; Relieftafel am Kanzelaufgang, Mariä Verkündigung, Inschrift: „De Mareien de Boeschop brocht dat was de Engel Gabergel“; Kanzel gestiftet von Kord Witmar und seiner Ehefrau Beke Rönneken. „Die Kanzel ist die älteste Renaissancearbeit in den norddeutschen Marschen.“59 – Hölzerne Taufe, farbig gefasst (1674, Zimmermeister Johann Moller), achteckiges Becken, Balusterschaft, achtseitiger Fuß; Reliefschnitzereien am Becken: vor den Ecken Figuren (bezeichnet: Moses, Aaron, S. Johan, S. Marcus, S. Lucas, S. Johan B., S. Petrus, S. Paulus), an den Wandungen u. a. Mariä Verkündigung, Geburt Christi, Taufe Christi, Kreuzigung, Auferstehung und Heiliger Geist; Inschrift: „Anno 1674 denn 30 Mertzi Johan Moller W. G. L. U. G. – W. P. W. S. W.“. – Zwölf Apostelgemälde (zweite Hälfte 17. Jh.), ursprünglich an Brüstung der Nordempore, Petrus, Andreas, Jakobus, Johannes, Philippus, Bartholomäus, Thomas, Matthäus, Jakobus, Judas, Simon Zelotes und Judas Iskariot. – Tafelbilder an der Emporenbrüstung (um 1681, teilweise wohl Hinrich Hayen60), Szenen aus AT und NT (Jesus heilt die Kranken, Jesus segnet die Kinder, Josef und seine Brüder(?), Daniel in der Löwengrube, Vision der sieben Leuchter, das Tier aus der Unterwelt, Anbetung des Lammes, die fünfte Posaune, Simsons Kampf mit dem Löwen, Jakobs Kampf mit dem Engel, Kain erschlägt Abel, Jakobs Traum von der Himmelsleiter, Tobias wandert mit dem Engel Raphael. – Drei Tafelbilder (zweite Hälfte 17. Jh.), Christus bei der Taufe von Johannes, sinkender Petrus, Ruth und Boas. – Gemälde mit Beichtszene (um 1600).61 – Epitaph (1683) für Justinus und Anna von Heshausen, Gemälde und Inschrift. – Stiftungstafel (1807), zu Erinnerung an eine testamentarische Stiftung des Johann Illius, Kaufmann in Lissabon, zugunsten des Kirchspiels Sandstedt. – In der Turmhalle: Grabplatte für P. Thomas Oesterreich (amt. 1609–1614), P. Christian Hoddersen (amt. 1615–1625) und P. Theodor Stolting (amt. 1638–1654). – Grabplatte für Johann, Domherr in Verden (um † 1600). – Grabplatte für Borchert Wittmers und seinen Sohn Cord Wittmers († 1606). – Außen an der Westwand des Turms Bronzetafeln mit den Namen der im Ersten und Zweiten Weltkrieg getöteten und vermissten Gemeindeglieder, Inschrift: „Verweile und gedenke der Toten und Vermissten beider Weltkriege. 1914–1918. 1939–1945. Gemeinde Sandstedt“. – Ehemalige Ausstattung: Zwei hölzerne Figuren (vielleicht Anfang 16. Jh.), Petrus und Jünger Johannes.62
Orgel
1601 Orgelbau ins Auge gefasst, nicht verwirklicht.63 Vermutlich um 1622 Orgelbau, 1635 Reparatur. 1673 Orgelneubau, ausgeführt von Berendt Huß (Glückstadt) und seinem Gesellen Arp Schnitger, Orgel intoniert und abgenommen anscheinend von Orgelbauer Pfaff (Hamburg), vermutlich 9 I/–. 1680 Instandsetzung, Organist Ubry (Sandstedt). 1708 Reparatur, Johann Elias Mosengel. 1725–27 Orgel um Rückpositiv erweitert, Gregorius Struve (Bremen), wohl 14 oder 15 II/–. 1753/54 Orgel erweitert, u. a. zwei Pedaltürme erbaut, Diedrich Christoph Gloger (Stade). Zustand 1840: 22 II/P (HW, BW). 1852 Orgel wegen Innenrenovierung ab- und wieder aufgebaut. 1865 Orgelbaumaßnahme. 1901–03 Neubau des Orgelwerks, ausgeführt von P. Furtwängler & Hammer (Hannover), 20 II/P, pneumatische Traktur, Kegelladen (Opus 472).64 Ab 1963 schrittweiser Neubau des Orgelwerks: 1963 Hauptwerk (sechs Register), 1974 Pedal (vier Register), beide Bauabschnitte ausgeführt von Hermann Hillebrand (Altwarmbüchen), 1986 Brustwerk (sechs Register) Bauabschnitt ausgeführt von Alfred Führer (Wilhelmshaven), 16 II/P, mechanische Traktur, Schleifladen; Prospekt von 1673 erhalten bzw. rekonstruiert, Pedaltürme 1963 freistehend in die Emporenbrüstung eingefügt; Inschriften am Prospekt: „Soli Deo gloria“ (Allein Gott die Ehre), „M[agister] Nicolaus Külenius Probst et P[astor], H[err] Nicolaus Unteütsch P[astor] s[ecundarius]“, „Anno 1671 [1673] gebawet, anno 1680 renovieret. Otte Schwogen und Syrich Fixen, Ivrate[n]“ und an der Empore: „Anno 1963 wurde diese Orgel von Grund auf wiederhergestellt“.65
Geläut
Drei LG, I: e’ (Bronze, Gj. 1801, Johann Philip Bartels, Bremen), Inschrift: „Mir ward das ernste Geschaft den Flug der Zeiten zu ehren, denn eine Zunge gab mir der Kunstler der jungst mich erschuf. Ich lad euch ein zum Gebet zum Vortrag himmlischer Ehren; erkauft die kostbare Zeit, folgt willig dem segnenden Ruf. Und wisset ihr Sterblichen das mein klagend Trauergeläute den Hingang zur ewigen Ruh, den müden Pilger bedeute. Nachdem diese Glocke in den Jahren 1734, 1740 und 1746 geborsten und umgegossen worden, ist sie abermals geborsten und im Jahre 1801 auf Veranstaltung des Herrn Pastoris Carl Georg Hieronimus Biedenweg und der Juraten Bohlke Sebben, Hermann Almers und Wierich Almers gegossen von Johan Philip Bartels, in Bremen“, Glocke im Zweiten Weltkrieg zu Rüstungszwecken abgegeben, nicht eingeschmolzen, seit 1947 wieder in Sandstedt; II: g’ (Bronze, Gj. 1957, Firma Rincker, Sinn), Inschriften: „Lobe den Herrn meine Seele und vergiss nicht, was er dir Gutes getan hat. Psalm 103, Vers 2“ und „Anstelle der im Kriege 1939–45 abgelieferten Glocke von der Gemeinde Sandstedt erworben und an Michaelis 1957 eingeweiht“; III: b’ (Bronze, Gj. 1868, Johann Philipp Bartels, Bremen), Inschrift: „Superintendent Eickenrodt, Organist Wolters. Kirchenvorsteher Fr. Boettger, Fr. Dresselhaus, Hr. Mensing, Hr. Allmers, Dr. Fechtmann, j. Tienken. Gegossen von J P. Bartels in Bremen. Sandstedt 1868. Ehre s[ei] G[ott] i[n] d[er] Hoehe. Friede auf Erden“; Glocke im Ersten Weltkrieg zu Rüstungszwecken abgegeben, nicht eingeschmolzen und seit 1919 wieder in Sandstedt. – Früherer Bestand: Eine LG (Bronze, Gj. 1596), Inschrift: „Katharine bin ick genannt. St. Johannes heft mi laten umgeten do Cort Witmer, Johann Hinke, M. B. K. und Hinrik Sybe werden Vorstende der Kerken to Sandstede in Gades Ehre 1596. Pastor Ernst Adamus et Johannes Emil Heisenius Custos“, um 1878 wohl noch vorhanden.66 Eine große LG (Bronze), 1734, 1740 und 1746 geborsten und jeweils neu gegossen, spätestens 1801 erneut geborsten und umgegossen zu jetziger LG I. Eine mittlere Glocke (Bronze, Gj. 1670, Peter Vilter), Inschrift: „O Jesv dv König der Ehren kom mit deinem Frieden. Wen dv mein lieber Christ der Klocken Klang vernommen, so sol tu mit Andacht zum Havse Gottes kommen. M. Nicolavs Cvlenius, Propst vbers gantze Ambt Hagen, Fieland, herrlichkeit Stotel vnd p[ro] t[empore] Pastor primarius S[andstedtensis]. V[icarius] H[er] Nicolavs Undeutsch, p[ro] t[empore] Pastor. Die H[erren] Juraten Dierich Rönncken, Otto Schwogen, Sirich Fixen. Folmechtingen Nacke Voge Cvstos. M[eister] Peter Vilter me fecit anno 1670“, Glocke 1934 beschädigt, 1935 geborsten und umgegossen zu einer neuen LG (Bronze, Gj. 1935, Firma Radler, Hildesheim), im Zweiten Weltkrieg zu Rüstungszwecken abgegeben.
Heutiges Geläut anhören: #createsoundscape
Weitere kirchliche Gebäude
Pfarr- und Gemeindehaus (Bj. 1896, ehemalige Schule, 1978 umgebaut). – Schwesternstation (Bj. 1963/64).
Friedhof
Kirchlicher Friedhof bei der Kirche. Kommunaler Friedhof in Rechtenfleth, angelegt 1852.67
Liste der Pastoren (bis 1940)
Pfarrstelle: 1596 Ernst Adamus. – 1601–1614 Thomas Oesterreich. – 1615–1625 Christian Hoddersen. – 1638–1654 Theodor (Diedor) Stolting, ab 1651 Propst. – 1654–1664 Johann Hoddersen, Propst. – 1665–1681 Nikolaus Cüle, Propst. – 1681–1712 Johann Allert Siltmann, nach 1681 Propst. – 1713–1723 Joachim Dolge. – 1724–1733 Johann Heinrich de Reiß. – 1733–1739 Martin Detloff, Propst. – 1740–1771 Heinrich Wilhelm Studtmann, 1764. – 1771–1785 Johann Horn. – 1785–1786 Georg Tobias Zeidler. – 1787–1796 Diedrich Jakob von Staden. – 1796–1826 Carl Georg Hieronymus Biedenweg. – 1827–1843 Dr. Georg Langenbeck. – 1845–1864 Georg Franz Daniel Fromme. – 1865–1868 Friedrich Heinrich Carl Eickenrodt. – 1868–1887 Philipp Ludwig Meno Valett. – 1887–1922 Wilhelm Karl Gottfried Ohnesorg. – 1923–1935 Johann Gustav Adolf Küver. – 1936–1947 Karl Ludwig Hans Reinhard Bunnemann.
Vikariat, Kommende: 1574, 1600 Appoldus Lindenburg.68 – Bis 1603 Gerhard Schulte. – 1607 Andreas Oestereich.69 – 1603/16–1628 Nikolaus Weiland. –1628–1654 Johann Hoddersen. – 1645 Magister [Henricus?] Gerckenius.70 – 1654–1687 Nicolaus Undeutsch.71
Angaben nach: Meyer, Pastoren II, S. 338–339 (mit Korrekturen und Ergänzungen nach NLA ST Rep. 5b Nr. 1456 und Visbeck, Nieder-Weser, S. 183–188).
Landeskirchliches Archiv Hannover (LkAH)
A 2 Nr. 1323–1337 (Pfarroffizialsachen); A 5 Nr. 796, 800 (Spec. Landeskons.); A 6 Nr. 7296–7297 (Pfarrbestallungsakten); A 9 Nr. 2557
, 2566
, 2567
(Visitationen); B 2 G 9 Nr. 2665–2666 (Baupflege und Bauwesen); B 2 G 9 B Nr. 558 (Orgel- und Glockenwesen); D 85 (EphA Wesermünde-Süd); L 5g Nr. 285, 944 (LSuptur. Stade); N 100 (Nachlass Hans Reinhard Bunnemann); S 2 Witt Nr. 5, 14 (Fotosammlung); S 09 rep Nr. 2012 (Presseausschnittsammlung); S 11a Nr. 7558 (Findbuch PfA).
Kirchenbücher
Taufen: ab 1640 (Lücken: 1672–1680; unvollständig: 1640–1671)
Trauungen: ab 1627 (Lücken: 1654–1680)
Begräbnisse: ab 1681
Kommunikanten: ab 1733 (Lücken: 2. p. Trin. 1741–Exaudi 1743, Laetare 1755–1757, 1783–1786, 1797, 1798, 1800–1804, 1806–1812, 1814–1817, 1821, 1822, 1825–1836, 1840–1842)
Konfirmationen: ab 1827
Literatur & Links
A: 50 Jahre KK Wesermünde-Süd, S. 98–102; Gemeindebuch KK Wesermünde-Süd, S. 26–28; Böker, Denkmaltopographie Lkr. Cuxhaven, S. 303–305; Dehio, Bremen/Niedersachsen, S. 1160; Diederichs-Gottschalk, Kirchenumgestaltung, S. 259–363; Grote/van der Ploeg/Kellner, Wandmalerei, Katalogband, Nr. 245; Kiecker/Cappelle, KD Kr. Geestemünde, S. 83–90; Körtge, Kirchenglocken, S. 193–195; Meyer, Pastoren II, S. 338–339; Mithoff, Kunstdenkmale V, S. 93; Schriefer: Hagen und Stotel, S. 266–284; Talkenberger, Quellen, S. 326; Visbeck, Nieder-Weser, S. 180–188 [Digitalisat].
B: Dietrich Diedrichs-Gottschalk: Die mittelalterliche Wand-Kalkmalerei in der Kirche zu Sandstedt, in: Jahrbuch der Männer vom Morgenstern 77/78 (1998/99), S. 427–441; Dietrich Diederichs-Gottschalk: Von der Glückstatt … ein Meister Nahmens Berendt Huess mit seinen Gesellen – Schnitgers Opus 0. Kirchenmusikalische Nachrichten und Orgelgeschichte der St. Johanniskirche Sandstedt, Unterweser von 1581 bis 1984, in: Arp Schnitger – redivivus: Beiträge zu Leben und Werk. Festschrift für Harald Vogel zum 80. Geburtstag, hrsg. von der Arp Schnitger Gesellschaft, Lilienthal 2023, S. 67–114; Felicitas Gottschalk: „Vom wilden Kampfe zwischen den Mächten der Finsternis und des Lichts“. Hermann Allmers’ Streit um eine Erneuerung der evangelischen Kirche in der Osterstader Marsch, in: Jahrbuch der Männer vom Morgenstern 82 (2003), S. 57–75; Karl Ohnesorg: Erinnerungen, hrsg. von Walter Holthusen, Wesermünde 1992; Johann Wellmann: Historische Grabmale und ihre Inschriften. St. Johannis Kirche Sandstedt, Garten-Friedhof Rechtenfleth, St. Marien Kirche Wersabe, Schwanewede 2007.
Internet: Bildindex der Kunst & Architektur: Kirche und Ausstattung; Denkmalatlas Niedersachsen: Kirche, Kirche, Kirchhof, Kirchenanlage; Wikipedia: St. Johannis (Sandstedt).
GND
2111576-X, Evangelisch-Lutherische Kirchengemeinde (Sandstedt)
Weitere Bilder
- Kirche
- Querschnitt
- Innenraum
- Altaraufsatz
- Altarwand
- Orgel
- Taufe
- Wandmalerei
- Taufe
Website der Kirchengemeinde (18.02.2024)
Fußnoten
- Hennecke/Krumwiede, Kirchen- und Altarpatrozinien I, S. 52.
- Regesten Ebf. Bremen I, Nr. 405; UB Hamburg I, Nr. 128 [Digitalisat].
- Dannenberg/Schulze, Geschichte II, S. 130 ff.
- Dannenberg/Schulze, Geschichte II, S. 204.
- LkAH, L 5g, Nr. 285 (Visitation 1962).
- Regesten Ebf. Bremen I, Nr. 405; UB Hamburg I, Nr. 128 [Digitalisat]. Vgl. auch Diederichs-Gottschalk, Kirchenumgestaltung, S. 259 ff.
- UB Lilienthal, Nr. 68.
- UB Lilienthal, Nr. 78.
- Schriefer, Hagen und Stotel, S. 278.
- RG Online, RG IV 04849, http://rg-online.dhi-roma.it/RG/4/4849, 18.03.2025: „Hinricus Nyeland (Nieman) cler. Bremen. de par. eccl. in Sanstede Bremen. dioc. vac. p. res. Nicolai Vilghemeyt presb. quam Gherardus Stock presb. p. 4 annos detinet […]“.
- RG Online, RG IV 04173, http://rg-online.dhi-roma.it/RG/4/4173, 18.03.2025.
- Visbeck, Nieder-Weser, S. 183 [Digitalisat] und ebd., S. 259 (Beilagen, Nr. 3) [Digitalisat].
- Diederichs-Gottschalk, Kirchenumgestaltung, S. 309; Datierung nach NLA ST Rep. 5b Nr. 1456.
- Visbeck, Nieder-Weser, S. 256 (Beilagen, Nr. 1) [Digitalisat]; Diederichs-Gottschalk, Kirchenumgestaltung, S. 275.
- Visbeck, Nieder-Weser, S. 182 [Digitalisat].
- Sehling, Kirchenordnungen 16. Jh. Bd. 7,1, S. 7, resümiert: „beinahe das ganze Erzstift“ wurde lutherisch; Otte ist vorsichtiger und hält fest, es bleibt „für diese Jahre weiterhin schwierig zu beurteilen, ob der einzelne Prediger evangelisch predigte oder altgläubig“, da die Pfarrer – nicht zuletzt mit Blick auf Erhalt der eigenen Pfründe – mitunter „zweideutig“ agierten (Dannenberg/Otte, Reformation, S. 32). Für einen knappen Überblick zur Reformation im Erzstift Bremen vgl. Sehling, Kirchenordnungen 16. Jh. Bd. 7,1, S. 7 ff. sowie die Beiträge in Dannenberg/Otte, Reformation.
- Dannenberg/Otte, Reformation, S. 38.
- Diederichs-Gottschalk, Kirchenumgestaltung, S. 268 und S. 274 ff.
- Bei Meyer, Pastoren II, S. 338, ist als Amtszeit 1546–1596 genannt, was möglicherweise auf den Setzfehler bei Schriefer, Hagen und Stotel, S. 279, zurückgeht, der aus der Jahreszahl „1596“ bei Visbeck, Nieder-Weser, S. 183 [Digitalisat] eine „1546“ machte.
- NLA ST Rep. 5b Nr. 1456. Vgl. auch Diederichs-Gottschalk, Kirchenumgestaltung, S. 277, der den in NLA ST Rep. 5b Nr. 1456 enthaltenen „Vertrag zwischen den Juraten von Sandstedt und dem dortigen Kommendentisten (Vikar) und Hamburger Kanoniker Appolus Lindenburg wegen der von letzterem nicht mehr einzuhaltenden Residenz“ aus dem Jahr 1600 bei seinen Überlegungen nicht berücksichtigt.
- Diederichs-Gottschalk, Kirchenumgestaltung, S. 278.
- Diederichs-Gottschalk, Glückstatt, S. 82.
- Diederichs-Gottschalk, Glückstatt, S. 84.
- NLA ST Rep. 5b Nr. 1456.
- Schriefer, Hagen und Stotel, S. 280.
- Rotermund, Das gelehrte Hannover I, S. 175 f. [Digitalisat].
- Diederichs-Gottschalk, Kirchenumgestaltung, S. 292. Zu Allmers vgl. knapp Schulz, Kurd, „Allmers, Hermann“ in: Neue Deutsche Biographie 1 (1953), S. 203–204 [Online-Version], sowie Gottschalk, Kampfe, S. 57 ff.; zur Vorsynode vgl. kurz Krumwiede, Kirchengeschichte II, S. 357 ff.
- Diederichs-Gottschalk, Kirchenumgestaltung, S. 295 ff.
- Ohnesorg, S. 15 f.
- LkAH, S 1 H III, Nr. 821, Bl. 16. Allgemein zum Fragebogen vgl. Kück, Ausgefüllt, S. 341 ff.
- Alle Zitate: LkAH, S 1 H III, Nr. 821, Bl. 16.
- LkAH, S 1 H III, Nr. 821, Bl. 16v.
- LkAH, S 1 H III, Nr. 821, Bl. 16; LkAH, L 5g, Nr. 285 (Visitation 1950).
- Gemeindebuch KK Wesermünde-Süd, S. 28.
- LkAH, L 5g, Nr. 285 (Visitation 1937 und 1950).
- LkAH, L 5g, Nr. 285 (Visitation 1962).
- 50 Jahre KK Wesermünde-Süd, S. 115.
- LkAH, L 5g, unverz., Sandstedt, Visitation 1995. Allgemein: Cordes, Gemeindepartnerschaften, S. 38 ff.
- LkAH, L 5g, unverz., Sandstedt, Visitation 1987.
- KABl. 2003, S. 24.
- KABl. 2018, S. 36 ff.
- KABl. 2018, S. 37 (Satzung des Evangelisch-lutherischen Kirchengemeindeverbandes
Wesermünde Südregion, § 2). - KABl. 1992, S. 220 f.
- KABl. 1981, S. 5.
- KABl. 1894, S. 106 f.
- Böker, Denkmaltopographie Lkr. Cuxhaven, S. 304.
- Hodenberg, Stader Copiar, S. 44 [Digitalisat].
- KABl. 1936, S. 93 f.
- KABl. 1940, S. 54. Vgl. auch 50 Jahre KK Wesermünde-Süd, S. 25 ff.
- KABl. 2012, S. 311 f.
- Visbeck, Nieder-Weser, S. 182 [Digitalisat].
- NLA ST Rep. 5b Nr. 1456.
- Grote/van der Ploeg/Kellner, Wandmalerei, Katalogband, Nr. 245; Diederichs-Gottschalk, Wand-Kalkmalereien, S. 428 ff.; Diederichs-Gottschalk, Kirchenumgestaltung, S. 264 ff.
- Diederichs-Gottschalk, Kirchenumgestaltung, S. 263 f.
- Zur Baugeschichte in reformatorischer Zeit: Diederichs-Gottschalk, Kirchenumgestaltung, S. 281 ff.
- Diederichs-Gottschalk, Glückstatt, S. 79 f.
- Diederichs-Gottschalk, Kirchenumgestaltung, S. 285.
- Diederichs-Gottschalk, Glückstatt, S. 81, hält fest, die Neugestaltung habe „etwaige Vorbilder (Loxstedt und Wremen)“ unbeachtet gelassen: „Es war eine Epoche der Kirchenrenovierungen, in der man Kahlschlag mit freier Interpretation historischer Kunstwerke kombinierte.“
- Diederichs-Gottschalk, Glückstatt, S. 71; vgl. zudem Diederichs-Gottschalk, Kirchenumgestaltung, S. 317 ff.
- Diederichs-Gottschalk, Glückstatt, S. 92.
- Diederichs-Gottschalk, Kirchenumgestaltung, S. 355.
- Diederichs-Gottschalk, Kirchenumgestaltung, S. 305 f.
- Zur Orgelgeschichte: Diederichs-Gottschalk, Glückstatt, S. 72 ff.
- Pape/Schloetmann, Hammer, S. 112.
- Nach Diederichs-Gottschalk, Glückstatt, S. 76 f., ist die Inschrift 1963 falsch wiederhergestellt worden: Anstatt 1673 wurde die Jahreszahl 1671 angegeben.
- Mithoff, Kunstdenkmale V, S. 93.
- Denkmalatlas Niedersachsen: Friedhofanlage Rechtenfleth.
- Visbeck, Nieder-Weser, S. 182.
- Visbeck, Nieder-Weser, S. 187.
- Diederichs-Gottschalk, Glückstatt, S. 78.
- Diederichs-Gottschalk, Glückstatt, S. 94.



















